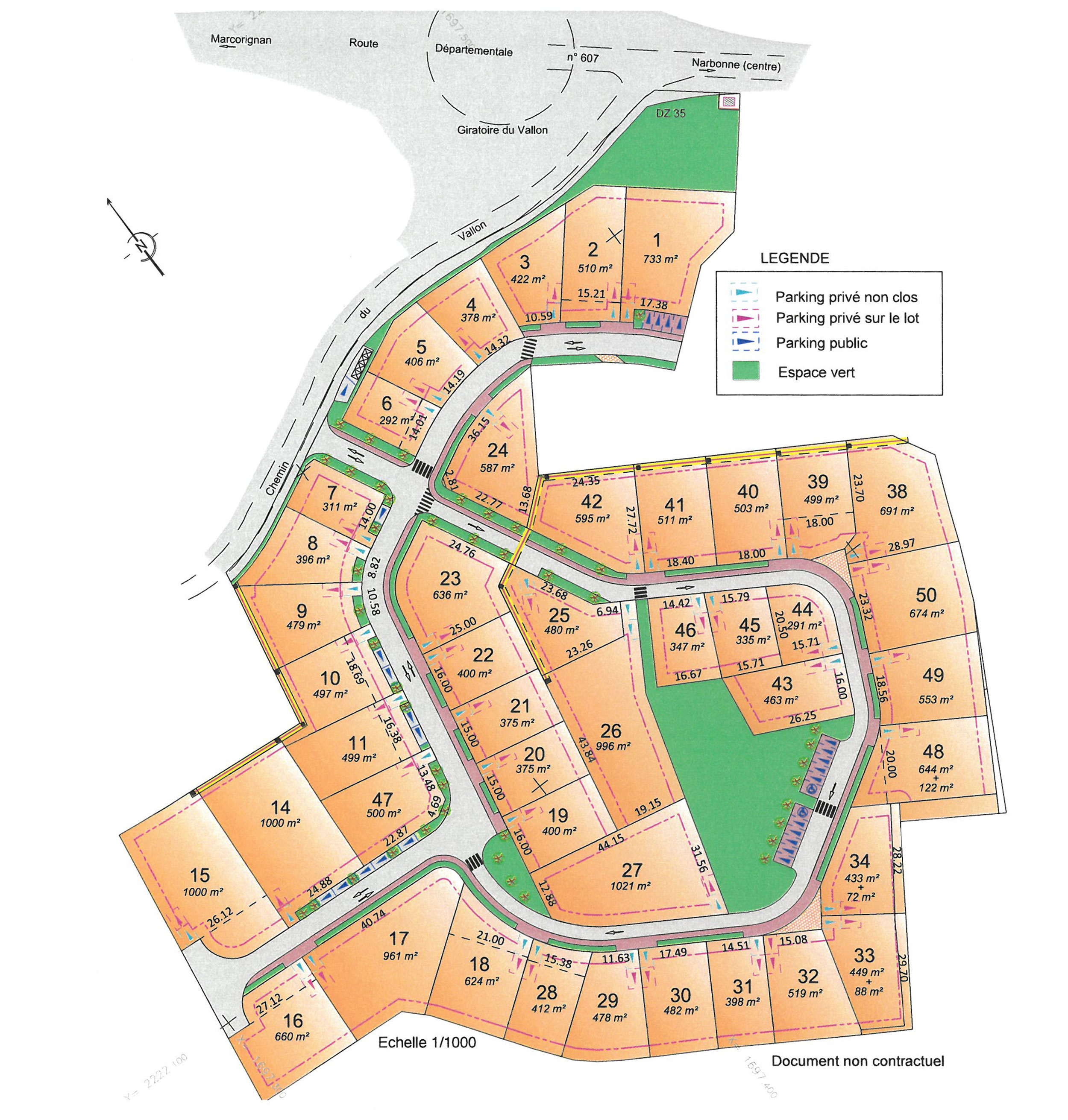
C’est dans la commune de Narbonne que la Compagnie Immobilière vous propose ses 45 parcelles à bâtir de 292 m² à 1000 m² dans un cadre bucolique et respectueuse de son environnement. L’opération « Ort de Capelle » offrira tout le confort a ses futurs habitants en raccordant notamment ses parcelles au réseau d’assainissement
Découvrez la ville de Narbonne
Télécharger le Plan
Les Lots
| Lot | Surface (en m²) | SDP (en m²) |
Prix en € | Plan |
|---|---|---|---|---|
| N°31 | 398 | Réservé | ||
| N°32 | 519 | Réservé | ||
| N°33 | 537 | Réservé | ||
| N°34 | 505 | Réservé | ||
| N°35 | - | - | - | |
| N°36 | - | - | - | |
| N°37 | - | - | - | |
| N°38 | 691 | Réservé | ||
| N°39 | 499 | Réservé | ||
| N°40 | 369 | Réservé |
Documents Téléchargeables
Lots Disponibles: 45
Eau Potable: Oui
Electricité: Oui
Assainissement Collectif: Oui
Telecom: Oui
Gaz: Non
A 10 min des commerces
A 1 h de la frontière Espagnole
A 30 min de Carcassonne
A 10 min de Port Leucaute


