Découvrez le Domaine du Parc à Cruscades, un cadre de vie exceptionnel où nature et commodités se rencontrent. Situé chemin de Resplandy, ce nouveau lotissement parfait pour ceux désirant s’établir dans un environnement paisible et riche en histoire.
À Cruscades, bénéficiez d’un tissu associatif dynamique, avec des activités pour tous les âges et intérêts, favorisant ainsi un esprit de communauté fort. La vie économique du village, répond aux besoins quotidiens avec ses commerces locaux et services, renforçant la qualité de vie des résidents.
Les familles apprécieront la proximité des établissements scolaires, garantissant une éducation de qualité pour leurs enfants. De plus, les nombreux événements et festivités organisés par la commune ajoutent à l’attrait de cette charmante localité.
Le Domaine du Parc, où tradition et modernité se conjuguent pour offrir un lieu de vie idéal. Venez construire votre futur à Cruscades, un village qui prône une qualité de vie supérieure et une connexion profonde avec son patrimoine.
Complément de tarif
À SAVOIR
- La viabilité,
- 200 € de quote-part d’impôt foncier
- 1000 € de provision pour dégradation
- 150 € pour la constitution de l’ASL
- 150 € de frais de dépôt de pièces
- 540 € de frais de géomètre (GEOSUDOUEST)
- Il faut prévoir après l’acte les frais de raccordements eaux usées de 2000 € (PFAC) et 500 € pour l’eau potable.
- La Taxe d’Aménagement (qui dépend du projet de construction) payable en deux fois.
Complétez votre projet
DOCUMENTS
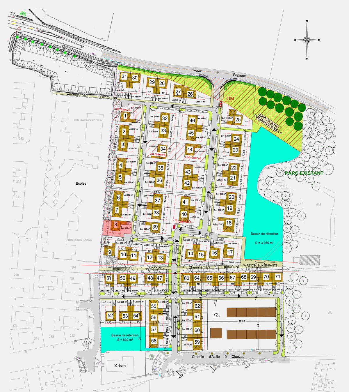
Les réservations pour la tranche une sont ouvertes.
| Lot | Surface (en m²) | SDP (en m²) |
Prix en € | Plan |
|---|---|---|---|---|
| N°21 | 400 | - | Réservé | |
| N°22 | 400 | - | Réservé | |
| N°23 | 400 | - | Option | |
| N°24 | 400 | - | - | |
| N°25 | 400 | - | - | |
| N°26 | 400 | - | - | |
| N°27 | 400 | - | - | |
| N°28 | 650 | - | - | |
| N°29 | 655 | - | - | |
| N°30 | 695 | - | - |
| Lot | Surface (en m²) | SDP (en m²) |
Prix en € | Plan |
|---|---|---|---|---|
| N°31 | 550 | - | - | |
| N°32 | 540 | - | - | |
| N°33 | 525 | - | - | |
| N°34 | 720 | - | - | |
| N°35 | 730 | - | - | |
| N°36 | 560 | - | - | |
| N°37 | 450 | - | - | |
| N°38 | 470 | - | - | |
| N°39 | 475 | - | - | |
| N°40 | 500 | - | - |
| Lot | Surface (en m²) | SDP (en m²) |
Prix en € | Plan |
|---|---|---|---|---|
| N°51 | 400 | - | Option | |
| N°52 | 470 | - | Option | |
| N°53 | 500 | - | Réservé | |
| N°54 | 535 | - | - | |
| N°55 | 540 | - | Option | |
| N°56 | 490 | - | - | |
| N°57 | 510 | - | - | |
| N°58 | 435 | - | - | |
| N°59 | 420 | - | - | |
| N°60 | 475 | - | - |


