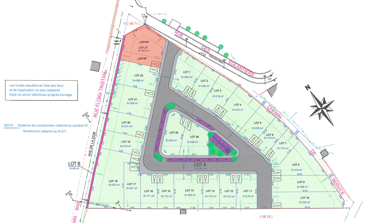
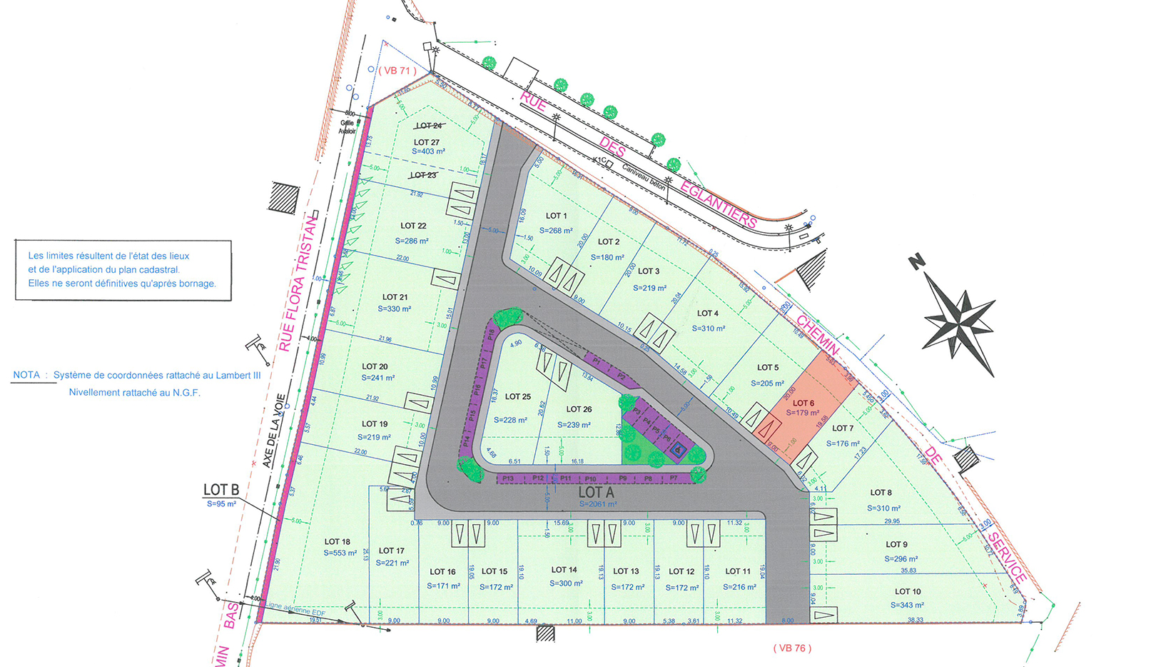
C’est dans la commune de Lézignan-Corbières, ville des Corbières non loin des vignes de ce fameux AOP que La Compagnie Immobilière vous propose ces 26 lots qui constitueront le Lotissement Le Clos des Perdrix …
Découvrez la ville de Lézignan-Corbières
Télécharger le Plan
Les Lots
Documents Téléchargeables
Adresse: Rue Flora Tristan
Ville: Lézignan-Corbières
Zone: Carcassonne, Narbonne
Code Postal: 11200
Pays: France
Lots Disponibles: 10
Date Livraison: Immédiate
Eau Potable: Oui
Electricité: Oui
Assainissement Collectif: Oui
Telecom: Oui
Gaz: Non
A 30 min de Narbonne
A 1h15 de la frontière Espagnole
A 30 min de Carcassonne
A 40 min de Béziers


