C’est dans la commune d’Olonzac, petit village à taille humaine à la croisée des chemins (quasiment à égale distances de Carcassonne, Béziers, Narbonne) que La Compagnie Immobilière vous propose ces lots qui constitueront le Lotissement Le Parc …
Découvrez la ville de Olonzac
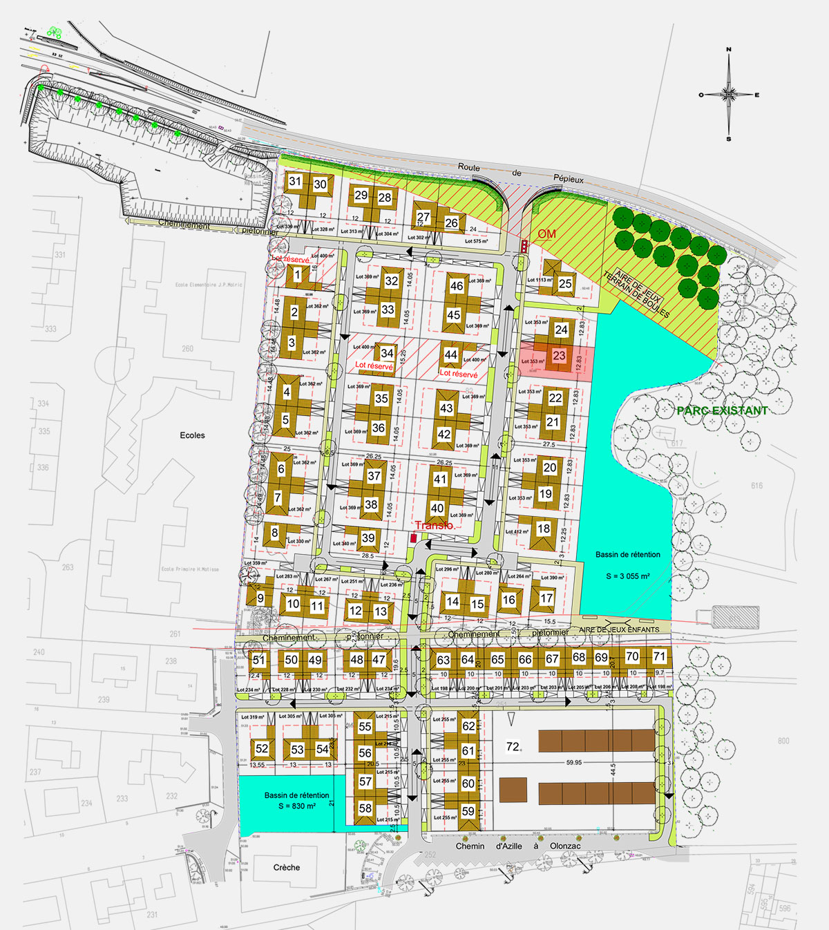
Télécharger le Plan
Les Lots
| Lot | Surface (en m²) | SDP (en m²) |
Prix en € | Plan |
|---|---|---|---|---|
| N°71 | 198 | 116 | Vendu |
Documents Téléchargeables
Lots Disponibles: 41
Eau Potable: Oui
Electricité: Oui
Assainissement Collectif: Oui
Telecom: Oui
Gaz: Non
Face à l´école Primaire
A 20 min du centre ville de Narbonne
A 40 min du centre ville de Perpignan
A 30 min de Carcassonne
A 40 min de Béziers


